Kustgeluk op 56m²: Een authentiek huisje in Koksijde wordt future-proof én beach-chic!
Wonen aan zee is een droom, maar wat als je 'small living' paleisje uit zijn voegen barst wanneer de kleinkinderen langskomen? Of erger nog: wat als je je zorgen maakt of dat gezellige huisje later nog wel praktisch is als je minder goed ter been bent? Voor een fantastisch seniorenkoppel in Koksijde bedacht ik een nieuwe indeling en ontwerp voor hun authentiek maar kleine huisje van 56m².
De uitdaging? Een open, modern plan creëren dat toegankelijk is voor een rollator, bakken met opbergruimte biedt en ook nog eens zo aantrekkelijk is dat huurders erom vechten als het koppel er zelf niet is. Hier lees je hoe deze puzzel hebben opgelost met slim interieuradvies!
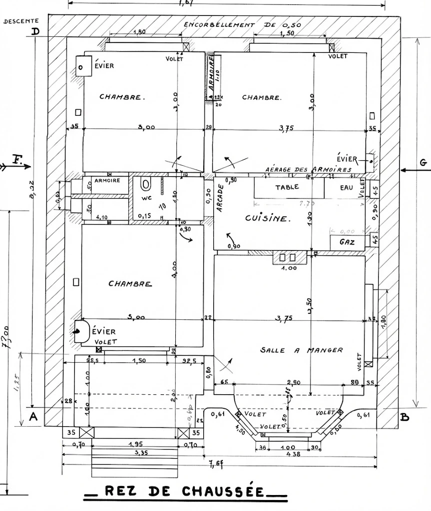
Dit was het plan origineel van 2 juni 1950: 3 slaapkamers een wc met wasbakje (dat was de badkamer) een hokkerige keuken, een grotere eet- en leefruimte

En dit is hoe ik het zie, anno 2026: Er werd een slaapkamer opgeofferd voor een ruime keuken, eet- en leefruimte. Er is meer kastruimte, we hebben een apparte wc en badkamer en 2 ruime slaapkamers. Alles is makkelijk en veilig bereikbaar dankzij ruime doorgangen en de logische indeling. De grote zithoek aan de erker biedt plaats voor vrienden en/of familie en om gezellig TV te kijken na een straffe strandwandeling.



Hier zie je renders van hoe het eruit zou kunnen zien:
1. Laat het licht het werk doen
In een kleine woning is natuurlijk licht je beste vriend om de ruimte groter te laten lijken. Ik heb de bestaande ramen behouden, maar het plan volledig opengebroken. Geen hokjes meer, maar een doorstroom waar het zonlicht van Koksijde tot in de verste hoekjes raakt. Een lichte basis op de muren reflecteert dit licht optimaal, waardoor die 56m² plots voelt als een villa.

2. De 90 cm-regel: Toegankelijkheid zonder 'ziekenhuis-vibe'
Toekomstbestendig wonen betekent niet dat je huis eruit moet zien als een zorgcentrum. De grootste aanpassing in dit ontwerp? Deurdoorgangen van 90 cm. Dit verhoogt de toegankelijkheid voor een rollator aanzienlijk. We hebben ook gezorgd voor brede circulatiepaden van minstens 90, zodat je nooit het gevoel hebt dat je moet manoeuvreren tussen de meubels.

3. Kastruimte: eindelijk
De kast doet hier dienst als roomdivider en staat centraal in de ruimte. Hierdoor kun je al je spullen kwijt zonder dat het visuele rommel wordt, want rommel is de grootste ruimteverkleiner die er bestaat. Door gesloten kasten te gebruiken, blijft het geheel rustig en oogt de woning altijd opgeruimd.
4. Zitruimte voor iedereen
Het koppel ontvangt graag vrienden en familie. Daarom hebben we gekozen voor multifunctioneel meubilair. In de erker komt een grote zit- en ligbank. Ideaal om naar buiten te kunnen turen of naar de TV. Zo kan iedereen comfortabel bijpraten na een strandwandeling.

Andere technieken die ik gebruikte in de prestentatie om het geheel rustiger en ruimter te laten voelen.
• Vervagingstechniek: Schilder plinten en deuren in dezelfde kleur als de muur. Zo vallen de randen weg en lijkt de kamer weidser
• Verlichting: Gebruik lampen tussen de 2700 en 3000 Kelvin voor dat gezellige zonsondergang-gevoel.
• Eerlijke materialen: Kies voor hout en textuur in plaats van plastic. Dat voelt direct luxueuzer aan voor jou én je gasten.
Benieuwd naar het resultaat?Bekijk hieronder het originele grondplan versus de nieuwe indeling en renders. Heb jij ook een kleine woning of een appartement dat wel wat ruimtelijk advies kan gebruiken? Ik help je graag om van jouw plek een echt 'thuis' te maken, nu en in de toekomst!